Водогрейный котел КВм-1,1 Гкал имеет систему движения потока воды исключающую образование застойных зон, перегрев поверхностей нагрева, обеспечивает хороший теплосъем, отсутствие накипи и, следовательно, необходимость в водоподготовке. Качественная газоплотная теплоизоляция котла 1,1 гарантирует максимальное уменьшение потерь тепла через стенки котла и отсутствие присосов холодного воздуха в топку, делая процесс горения топлива более интенсивным и эффективным.
Большой объем топочной камеры обеспечивает более полное выгорание топлива и снижает механический и химический недожог. Котел КВм-1,1 с развитой конвективной поверхностью нагрева имеет температуру уходящих газов не более 200 °С и как следствие минимально возможные потери с уходящими газами. Котел КВм-1,1 Гкал изначально разработан с целью снижения прямых затрат при производстве тепловой энергии за счет эффективного сжигания топлива и удобства его эксплуатации.
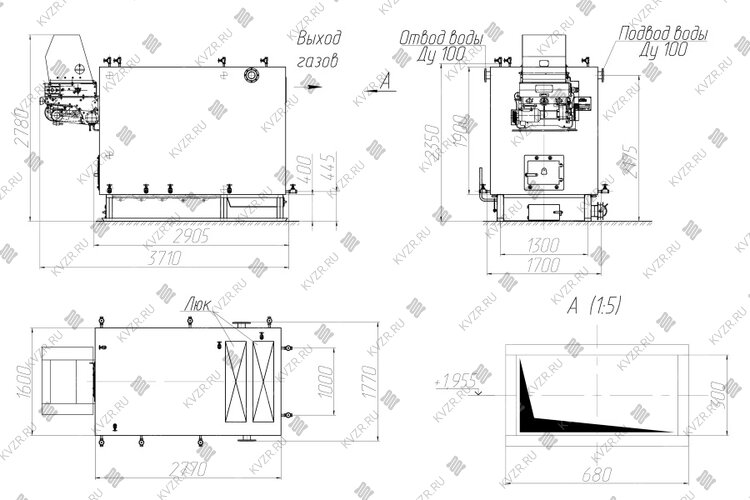
Водогрейный твердотопливный стальной отопительный котел КВм-1,1 мощностью 1,1 Гкал (1,28 МВт), предназначен для получения горячей воды номинальной температурой на выходе из котла 115 °С рабочим давлением до 0,6 (6,0) МПа (кгс/см), используемой в системах централизованного теплоснабжения на нужды отопления, горячего водоснабжения.
Водогрейный котел КВм 1,1 Гкал выполнен двухблочным - блок котла, с устанавливаемым на него забрасывателем ЗП и полумеханическая топка с поворотными колосниками РПК.
Блок водогрейного котла представляет собой сварную конструкцию, состоящую из трубной системы (радиационной и конвективной поверхности нагрева), опорной рамы и каркаса с теплоизоляционными материалами, обшитого листовой сталью. Котлы имеют П-образную сомкнутую компоновку. Топочная камера угольных котлов состоит из труб Ø 57x3,5 мм. Топочная камера водогрейного котла выполнена газоплотной путем плавникового оребрения. На фронте котла установлена плита для крепления забрасывателя, под плитой для забрасывателя и на боковой стенке котла установлены дверки для обслуживания топки и контроля процесса горения.
Конвективная поверхность нагрева состоит из пакетов выполненных из труб Ø 57x3,5 мм, для интенсификации теплообмена трубы пакетов расположены в шахматном порядке. Газы в конвективной части делают два хода и выходят через газоход в верхней части задней стенки котла. В газоплотной части котельного блока изоляция выполнена облегченной из плит ПТЭ. В негазоплотной части котельного блока теплоизоляция выполнена из муллитокремнеземистого картона и войлока. Обшивка водогрейных котлов выполнена из стальных листов. Для очистки конвективных поверхностей нагрева от сажистых и золовых отложений предусмотрены двери.
Забрасыватель ЗП - 400 обеспечивает равномерную механическую подачу угля в котел.
Топка РПК состоит из плитчатых и поворотных колосников набираемых в колосниковую решетку из отдельных секций, каждая из которых закрепляется на общем валу. На колосниковой решетке с поворотными колосниками с решетки после выжига удаляется весь шлак. Топка РПК может быть выполнена с передним, задним и средним выгрузом шлака, в зависимости от схемы котельной. Возможно изготовление топки РПК где вместо плитчатых колосников будет установлена радиальная воздухораспределительная решетка РВР.
Котел с топкой ЗП РПК КВм-1,1 устанавливается в котельных с механическими топливоподачей и шлакоудалением. Топливо в бункер забрасывателя подает скребковый либо ленточный транспортер топливоподачи. Забрасыватель подает топливо на колосниковую решетку. Нагрузка топки регулируется изменением подачи топлива забрасывателем, а также изменением количества подаваемого воздуха. В топках полностью механизирован заброс топлива на колосниковую решетку.
Шуровка слоя, а также шлакозолоудаление выполняют ручным способом. Топливо сжигается на слоевой топке, под которую вентилятором топки подается воздух для горения. Сброс шлака происходит через проем, образующийся на топке при повороте опрокидывающихся колосников. Удаление шлака производится транспортером шлакозолоудаления.
Котел стальной водогрейный КВм 1,1 поставляется готовым блоком в обшивке с чугунной топочной дверкой, маханическим забрасывателем ЗП с фронтовой плитой и топкой с поворотными колосниками РПК. С котлом поставляется паспорт и инструкция по эксплуатации водогрейного котла.
В комплект поставки котла входят: затворы дисковые - 2 шт, запорные вентили - комплект, предохранительные клапаны - 2 шт, термометры с оправой - 4 шт, манометры с кранами - 4 шт, дутьевой вентилятор - 1 шт, забрасыватель - 1 шт.
Котлы КВм-1,1 имеют два варианта поставки:
Автоматика водогрейного котла - подбирается по техзаданию.
Твердотопливный котел КВм 1,1 с ЗП РПК работает с ДН 6,3 с дв. 5,5/1500 при сжигании каменного и дымососом ДН 8 с дв. 15/1500 при сжигании бурого угля. При установке дымососа на группу котлов, дымосос подбирается индивидуально согласно опросному листу.
При необходимости за котлом перед дымососом может устанавливаться золоуловитель ЗУ 1,1 или циклоны ЦН. При работе с золоуловителем устанавливается дымосос ДН 8 с дв. 15/1500.
Для обеспечения циркуляции воды через котел КВм 1,1 с ЗП РПК либо группу котлов применяется циркуляционный насос, для подпитки котла применяется подпиточный насос.
Дымовая труба - подбирается по техзаданию, на котел или группу котлов.
осуществляется ж/д контейнером и автотранспортом. Для оценки стоимости доставки пришлите заявку и мы оперативно проведем расчет стоимости доставки котельного оборудования до вашего города или населенного пункта. Для вашего удобства предлагаем оформить заявку и уточнить интересующую вас информацию онлайн.
Стальной котел КВм-1,1 поставляется двумя блоками максимальной заводской готовности. Топка РПК устанавливается в котельной на специально подготовленную ровную поверхность и закрепляется анкерными болтами. Котельный блок устанавливается на топку. На фронт котла на специальную плиту крепится забрасыватель. Далее котел и топка подсоединяются по воде, устанавливается запорная арматура на подводящем и отводящем трубопроводе, устанавливаются предохранительные клапаны, дренажи и воздушники и контрольно измерительные приборы. В воздушный короб по месту врезается вентилятор, монтируется газоход.
Для того чтобы купить котел 1,1 с топкой ЗП РПК, вы можете сделать заявку в отдел сбыта по телефону (38-52) 29-97-41 (42), либо оформить заявку онлайн. Наши менеджеры дадут консультацию по подбору вспомогательного оборудования для выбранных вами моделей и рассчитают стоимость доставки до вашего региона и населенного пункта. Также предлагаем вам выполнить проект реконструкции котельной.
Цена от 30 тысяч рублей. В стоимость входят - выезд специалиста на объект, подбор вспомогательного оборудования, разработка проекта реконструкции тепломеханической части котельной, смета на выполнение работ, дефектная ведомость.
Цена водогрейного котла КВм-1,1 с ЗП РПК в Бийска включает в себя котельный блок в изоляции, механический забрасываетль ЗП, топку с поворотными опрокидывающимися колосниками, вентили, затворы, манометры, термометры, вентилятор поддува и предохранительные клапаны. Ниже приведена подробная информация.
Для эффективной и надежной работы котла КВм-1,1 с ЗП РПК в вашей котельной вам потребуется дополнительное оборудование - автоматика ЩУК, дымосос, насос сетевой и подпиточный, золоуловитель (по желанию), транспортеры, газоходы и переходники для газового тракта, дымовая труба. Мы предлагаем рассмотреть типовые варианты комплектации.
В случае если у вас на объекте уже имеется насосное и тягодутьевое оборудование, мы можем проверить совместимость котла КВм-1,1 с ЗП РПК нашего производства и вашего оборудования.
Можем изготовить нестандартные узлы для выполнения быстрого монтажа котла - газоходы и узлы обвязки.
Типовую схему монтажа котла вы можете посмотреть во вкладке схемы подключения и монтаж.
Водогрейный твердотопливный стальной отопительный котел КВм-1,1 с ЗП РПК, предназначен для получения горячей воды номинальной температурой на выходе из котла от 95 до 115 °С рабочим давлением до 0,6 (6,0) МПа (кгс/см), используемой в системах централизованного теплоснабжения на нужды отопления, горячего водоснабжения. Устанавливается в производственных, промышленных и отопительных котельных.
Монтаж водогрейного котла КВм-1,1 с ЗП РПК и вспомогательного оборудования в котельной должно производиться в соответствии с проектом и учетом требований СП 89.13330. 2016 «Котельные установки. Актуализированная редакция СНиП II-35-76» и «Правил устройства и безопасной эксплуатации паровых котлов с давлением пара не более 0,07 МПа (0,7 кгс/см2), водогрейных котлов и водоподогревателей с температурой нагрева воды не выше 388 К (115 С). Правильный монтаж котла – залог его надежной и долгой работы.
Чтобы правильно подключить котел КВм-1,1 с ЗП РПК в котельной необходимо оставить проемы для обслуживания оборудования во время эксплуатации. На представленной здесь схеме указаны их минимальные размеры. Кроме того, в данной примерной схеме монтажа водогрейных котлов и оборудования указан перечень минимально необходимого вспомогательного оборудования для правильной работы котла.
К вспомогательному оборудованию при подключении промышленного водогрейного котла КВм с ЗП РПК относят - щит управления котлом, насос циркуляционный, насос подпиточной воды, бак запаса воды, расширительный мембранный бак, транспортер, дымовую трубу, систему газоходов и дымосос, золоуловитель (по желанию).
В случае если подпиточная вода не соответствует по своим характеристикам требованиям к питательной воде, необходимо предусмотреть систему водоподготовки котловой воды.
Для котельных 1 категории, являющиеся единственным источником тепла системы теплоснабжения и обеспечивающие потребителей первой категории, не имеющих индивидуальных резервных источников тепла, необходимо предусмотреть полное резервирование оборудования – подключение 2 (двух) котлов, насосов, ТДМ. Пунктиром обозначено оборудование для резервирования.
Для котельных 2 категории, включающие в себя промышленные и производственные котельные резервирование нужно предусматривать по необходимости.
Водогрейные котлы производства Котельный завод "РЭП" соответствуют строгим стандартам качества и безопасности. Завод производит котлы в соответствии с требованиями ГОСТ 30735-3001 по Техническим Условиям завода.
Котлы имеют все необходимые сертификаты соответствия Техническим регламентам Таможенного союза:
Водогрейный котел КВм-1,1 с ЗП РПК имеет гарантийный срок 24 месяца и срок работы при соблюдении правил монтажа и эксплуатации оборудования 10 лет.

Отзыв о работе котла КВр производства Котельный завод "РЭП", проработавшего на АО "Водоканал" г. Белокуриха 10 лет. Интервью предоставил заместитель главного директора по производству Суходоев Сергей Николаевич.

Интервью с главным энергетиком базового комплекса "Сводор" г. Барнаул о работе водогрейного котла нашего производства, отапливающего предприятие с 2008 года.
Водогрейные котлы, мощностью от 175 КВт до 4 МВт используются для отопления производственных, административных и жилых зданий. Котельный завод производит и поставляет весь перечень сопутствующего котельного оборудования- насосы, газоходы, автоматику, дымососы, дымовые трубы, циклоны и прочее. Специалисты нашего завода бесплатно подберут сопутствующее оборудование, а в случае необходимости, выполнят проектирование, монтаж и пуско-наладку котельной установки.
Подобрать мощность котла по площади важно учитывая не только площадь и объем здания, но и тип зданий и климатические данные региона.
На нашем сайте калькулятор расчета мощности котла учитывает тепло, требуемое на возмещение тепловых потерь через строительные конструкции и потери, вызываемые инфильтрацией (проникновением) наружного воздуха, через их неплотности и периодически открываемые двери.
Наружный строительный объем здания должен определяться умножением площади горизонтального сечения, взятого по внешнему обводу здания на уровне первого этажа на полную высоту здания, измеренную для панельных зданий: от уровня чистого пола (нулевой отметки) до верхней плоскости теплоизоляционного слоя чердачного покрытия, для остальных строений от уровня земли.
Расчетная температура воздуха в отапливаемых зданий принимается в зависимости от типа и назначения здания:
В случае если требуется отопление различных по типу зданий, теплопотребление каждого считается отдельно, полученные значения складываются и подобрать мощность котла нужно в соответствии с общей суммарной мощностью каждого отдельно стоящего задания.
Климатические условия вашего региона принимаются в соответствии с СП 131.13330 Строительная климатология. Данные по всем регионам России занесены в наш калькулятор расчета мощности котла.
Подобрать мощность котла по площади с учетом потребностей объекта в тепле на вентиляцию и горячую воду возможно только с более детальным расчетом. Его вы можете заказать в отделе сбыта котельного завода отправив заявку на электронный адрес sb@kvzr.ru или позвонив по телефонам (38-52) 29-97-41, 29-97-42.