string(4) "3383"

Котел КВГМ 4.0 МВт мазутный (под отечественную горелку ГМГ) в Бийска

Версия
для печати
В наличии на складе Цена в рублях с НДС 1 610 000
Получите скидку
у менеджера
Цена на котел КВГМ 4.0 МВт мазутный (под отечественную горелку ГМГ) с доставкой от 1 610 000 рублей с НДС
Вид топкиМазутная горелка
Максимальная тепловая мощность, МВт4
ТопливоМазут, Жидкое
Отапливаемая площадь, м²33400-44000
Доставка ТК в г. Бийск и по России
Безналичный расчет
Подобрать котел по мощности
Опросный лист
Эту продукцию можно
купить в лизинг
  • Технические
    характеристики
  • Описание
    товара
  • Комплект
    поставки
  • Дополнительно
    потребуется
  • Сертификаты и
    гарантии
  • Отзывы о
    продукции
  • Видео
    обзор
  • Подбор
    котла

Газомазутный котел КВГМ надежная и эффективная водотрубная конструкция

  • Развитая конвективная поверхность нагрева снижает температуру уходящих газов 180-200°C - КПД 92%
  • Все элементы топочной камеры равномерно охлаждаются теплоносителем
  • Отсутствие трубных досок исключает деформации и разрывы сварных швов
  • Быстрый выход на режим и эксплуатационная гибкость
  • Высокая скорость потока теплоносителя (профилактика накипи) и минимальные требования к химводоподготовке

Технические характеристики котла КВГМ 4.0 МВт мазутного (под отечественную горелку ГМГ)

Тип Котел КВГМ
Тип отопительного котла Жидкотопливный
Бренд HeatExpert
Марка Котел КВГМ 4.0 на мазуте
Вид топки Мазутная горелка
Максимальная тепловая мощность, МВт 4
Максимальная тепловая мощность, кВт 4000
Максимальная тепловая мощность, Гкал 3.44
Диапазон регулирования мощности, % 40-100
Топливо Мазут, Жидкое
Низшая теплота сгорания проектного топлива, кКал/нм³ 9260
КПД котла на МАЗУТЕ, не менее, % 92.6
Расход МАЗУТА среднечасовой за отопительный сезон, м³/ч 225
Расход МАЗУТА при максимальной нагрузке котла, кг/ч 402
Расход условного топлива, кг/ч 532
Минимальная температура воды на входе в котел, °C 55
Максимальная температура воды на выходе из котла, °C 115
Давление воды, не более, МПа (кгс/см²) 0.3-0.6 (3-6)
Номинальный расход теплоносителя, м³/ч 138
Расход теплоносителя через котел min-max, м³/ч 103-172
Гидравлическое сопротивление при номинальном расходе, МПа (кгс/cм²) не более 0.07 (0.7)
Аэродинамическое сопротивление, Па (мм. вод. ст.) 340 (34)
Давление в топке, Па 390 (39)
Объем уходящих газов, м³/ч 7200
Температура уходящих газов, не более, °С 152
Тяга Принудительная
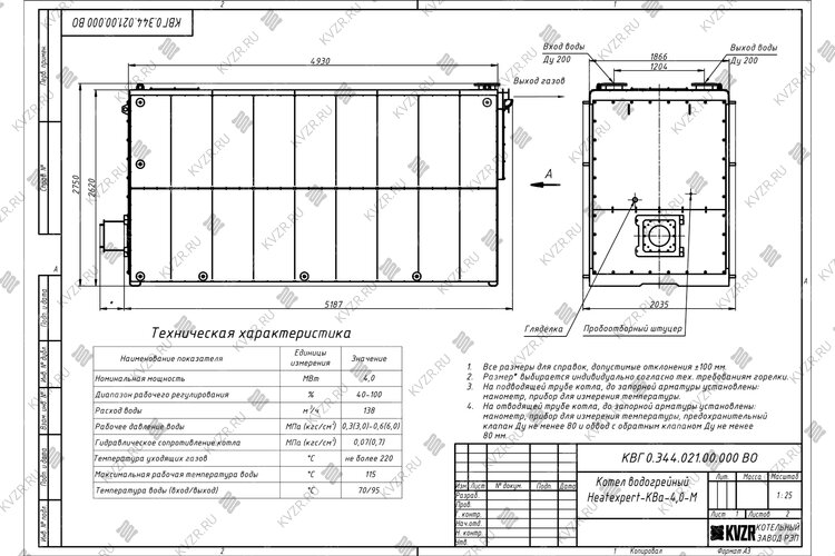
Водяной объем котла, л 1700
Объем топочной камеры, м³ 10.42
Размер топочной камеры, длина*ширина*высота, мм 4625х1610х1400
Присоединительные размеры по водяному тракту, Ду 200
Присоединительные размеры газохода уходящих газов, ширина*высота / сечение, мм/м² 1200х215 / 0.26
Габаритные размеры котла, длина*ширина*высота, мм 5375х2000х2750
Масса, кг 6700
Вид Водогрейный
Конструкция котла водотрубная, горизонтальная
Количество контуров Одноконтурный
Размещение Напольный
Тип камеры сгорания Закрытый
Управление Электронное
Энергонезависимый Нет
Тип питания Трехфазное
Встроенный циркуляционный насос Нет
Встроенный расширительный бак Нет
Энергоэффективность Высокая
Отапливаемая площадь, м² от 33400 до 44000
Отапливаемый объем, м³ от 100200 до 132000

Водогрейный мазутный котел КВГМ 4.0 МВт в Бийска

Водогрейный мазутный котел КВГМ 4.0 МВт гладкотрубной трехходовой конструкции имеет существенные преимущества перед жаротрубными моделями благодаря следующим конструктивным особенностям:

  • Гладкотрубная поверхность нагрева воды имеет развитую поверхность, при компактных внешних размерах плотный пучок конвективных труб, расположенных в шахматном порядке и омываемый дымовыми газами в поперечном направлении обеспечивает высокую тепловую эффективность котельного блока. Газы в котле делают три хода – в топке, в первом конвективном пакете и во втором.
  • Существенное достоинство гладкотрубной конструкции - надежность. Трубная система собирается из труб ввариваемых в коллектор, также охлаждаемые теплоносителем, а не в трубные доски. В таком теплогенераторе отсутствует давление перегретых труб на трубную доску и напряжения в сварных швах, вызывающее деформации и разрыв швов.
  • Быстрый выход на режим и высокая маневренность – благодаря малому водяному объему.
  • В водотрубных котлах КВГМ 4.0 МВт на мазуте теплоноситель поступает через коллектор с перегородками и распределяется по трубной системе равномерными потоками с высокой скоростью. Такая схема движения потока воды исключает образование застойных зон, локальный перегрев поверхностей нагрева, местное выпадение солей и отложения накипи, и делает агрегат менее требовательным к качеству питательной воды.
  • И наконец, главное, водотрубный гладкотрубный котел КВГМ 4.0 МВт безопасен. Даже при внезапном снижении давления внутри теплогенератора до атмосферного не произойдет выделение пара, и он не взорвется.

Параметры работы

Водогрейные котлы КВГМ 4,0 МВт работающие на мазуте предназначены для получения горячей воды номинальной температурой на выходе из котла 95 (115) °С рабочим давлением до 0,6 (6,0) МПа (кгс/см), используется в системах централизованного теплоснабжения на нужды отопления и горячего водоснабжения. Котел КВГМ 4 0 МВт отопительный предназначен для работы в открытых и закрытых системах теплоснабжения с принудительной циркуляцией воды. Вид сжигаемого топлива: мазут.

Давление газа перед горелкой может быть как среднее, так и низкое.

Устройство водогрейного котла КВГМ 4.0 МВт

Стальной напольный водогрейный котел КВГМ 4.0 МВт на мазуте имеет газоплотные топочную камеру и конвективную часть. В заднем экране топочной камеры выполнено отверстие, в котором установлен взрывной клапан, предохраняющий конструкцию от разрушения при возникновении избыточного давления в топочной камере.

Промышленный водотрубный мазутный котел отопления КВГМ 4,0 МВт устанавливается на раму. Рама котла выполнена из швеллера и ставится на опоры. Опоры котла крепятся к ровной подготовленной поверхности анкерными болтами. Блок горелки закрепляется на фронтовой плите с помощью болтовых соединений. Фронтовая плита закрепляется при помощи шарниров и выполняет функцию люка, что позволяет осуществлять доступ в топочную камеру котла для осмотра и ремонтных работ без разбора обшивки и изоляции.

Изоляция выполняется из жаростойких материалов и стальных листов.

Выход газов в теплоагрегате происходит сверху. В случае необходимости возможно изготовление опускного газохода.

Применяемые горелочные устройства котла КВГМ 4.0 МВт на мазуте:

  • модель работает с отечественными горелками ГМГ.

Данные типы горелок имеют более широкий угол раскрытия факела, поэтому требуется более широкая топочная часть котла.

Котел работает под наддувом, без дымососа.

Купить котел КВГМ 4.0 МВт

Для того чтобы купить мазутный котел КВГМ 4.0 МВт в Бийска, вы можете сделать заявку в отдел сбыта по телефону (38-52) 29-97-41 (42), либо оформить заявку онлайн. Наши менеджеры дадут консультацию по подбору вспомогательного оборудования для выбранных вами моделей и рассчитают стоимость доставки до вашего региона и населенного пункта.

Котельный завод РЭП осуществляет производство котлов КВГМ 4.0 МВт в г Барнауле по типовым проектам и по техническому заданию, согласованному с заказчиком – производим доработки котла под вашу котельную: зеркальное отображение подвода теплоносителя, изготавливаем опускные газоходы, выполняем амбразуру под вашу модификацию горелочного устройства и подобное.

Марки и виды котлов КВГМ 4.0 МВт производства барнаульский котельный завод РЭП

Российские котлы КВГМ 4.0 МВт изготавливаются по ГОСТ 30735-2001 и имеют сертификат соответствия ТС ТР 010/2011, ТС ТР 016/2011, ТС ТР 032/2013.

Марка КВГМ 4.0 МВт расшифровывается, как котел водогрейный с теплопроизводительностью 4 МВт, 4000 КВт под отечественную газомазутную горелку. Также может применяться дополнительная аббревиатура например:

  • котел КВГМ 4.0 -95 | КВ-ГМ 4.0 -95 Н | КВ 4.0 -95 ГМ с температурой нагрева воды 95 °С;
  • котел КВГМ 4.0 -115 | КВ-ГМ 4.0 -115 Н | КВ 4.0 -115 ГМ с температурой нагрева воды 115 °С;

Комплект поставки котла КВГМ 4.0 МВт мазутного (под отечественную горелку ГМГ)

Цена водогрейного котла КВГМ 4.0 МВт мазутного (под отечественную горелку ГМГ) в Бийска включает в себя котельный блок в изоляции, вентили, затворы, манометры, термометры и предохранительные клапаны. Ниже приведена подробная информация.

Дополнительное вспомогательное оборудование для работы котла КВГМ 4.0 МВт мазутного (под отечественную горелку ГМГ)

Для эффективной и надежной работы котла КВГМ 4.0 МВт мазутного (под отечественную горелку ГМГ) в вашей котельной вам потребуется дополнительное оборудование - автоматика ЩУК, горелка импортного или отечественного производства, насос сетевой и подпиточный, регулятор давления газа (по необходимости), газоходы и переходники для газового тракта, дымовая труба. Мы предлагаем рассмотреть типовые варианты комплектации.

В случае если у вас на объекте уже имеется насосное и горелочное оборудования, мы можем проверить совместимость котла КВГМ 4.0 МВт мазутного (под отечественную горелку ГМГ) нашего производства и вашего оборудования.

Можем изготовить нестандартные узлы для выполнения быстрого монтажа котла - газоходы и узлы обвязки.

Типовую схему монтажа котла вы можете посмотреть во вкладке схемы подключения и монтаж.

  • автоматический розжиг и останов котла;
  • поддержание в заданных пределах температуры теплоносителя на выходе из котла путем позиционного регулирования мощности горелки;
  • плановый останов котла;
  • аварийный останов котла с выдачей аварийной звуковой и световой сигнализации, отображение причины останова на OLED индикаторе и запоминание ее;
  • автоматическая защита, обеспечивающая останов котла и блокировку его пуска при возникновении аварийных ситуаций.
Цена 170 000 рублей с НДС

Производим газоходы по индивидуальному заказу согласно схеме компоновки котельной. Системы газоходов могут включать в себя:

  • шиберы;
  • газоходы различного сечения;
  • переходы;
  • тройники;
  • карманы всасывающие дымососов.

Используется в качестве сетевого насоса в промышленных отопительных котельных

Используется в качестве сетевого насоса в промышленных отопительных котельных

Цена 66 200 рублей с НДС

Используется в качестве сетевого насоса в промышленных отопительных котельных

Цена 608 400 рублей с НДС

Дымосос для удаления дымовых газов из котла.

Цена 227 500 рублей с НДС

Схемы подключения и монтаж котла КВГМ 4.0 МВт мазутного (под отечественную горелку ГМГ)

Водогрейный стальной отопительный котел КВГМ 4.0 МВт мазутный (под отечественную горелку ГМГ), предназначен для получения горячей воды номинальной температурой на выходе из котла от 95 до 115 °С рабочим давлением до 0,6 (6,0) МПа (кгс/см), используемой в системах централизованного теплоснабжения на нужды отопления, горячего водоснабжения. Устанавливается в производственных, промышленных и отопительных котельных.

Дополнительные услуги

Сертификат и качество котла КВГМ 4.0 МВт мазутного (под отечественную горелку ГМГ)

Водогрейные котлы производства Котельный завод "РЭП" соответствуют строгим стандартам качества и безопасности. Завод производит котлы КВГМ-4.0 в соответствии с требованиями ГОСТ 30735-3001 по Техническим Условиям завода.

Котлы имеют сертификаты соответствия Техническим регламентам Таможенного союза:

  • ТР ТС 010/2011 «О безопасности машин и оборудования».
  • ТР ТС 032/2013 - «О безопасности оборудования, работающего под избыточным давлением».
  • ТР ТС 016/2011 «О безопасности аппаратов, работающих на газообразном топливе»

Водогрейный котел КВГМ 4.0 МВт мазутный (под отечественную горелку ГМГ) имеет гарантийный срок 24 месяца и срок работы при соблюдении правил монтажа и эксплуатации оборудования 10 лет.

Расшифровка маркировки котла КВГМ 4.0 МВт мазутного (под отечественную горелку ГМГ):

  • К – котел
  • В – водогрейный
  • Г - работа на газе
  • М - работа на мазуте
  • 4,0 – теплопроизводительность 4.0 МВт (4000 кВт)
  • HeatExpert - зарегистрированный товарный знак Котельного завода "РЭП"

Дополнительные аббревиатуры в маркировке:

  • котел КВГМ 4.0 МВт - котел водогрейный газомазутный мощностью 4.0 МВт;
  • котел КВ-ГМ-4,0-115Н - номинальная температура воды на выходе до 115°С;
  • котел КВ ГМ 4.0-95 – максимальная температура нагрева воды на выходе 95 °C;
  • котел КВ-ГМ 4.0-115 – максимальная температура нагрева воды на выходе 115 °C;
  • котел КВ 4.0-95 ГМ – газомазутный котел с температурой воды 95 °C;
  • котел КВ 4.0 -115/ГМ – газомазутный котел с температурой воды 115 °C.
Сертификат на водогрейные котлы .jpg
Сертификат на водогрейные котлы
Знак товарный на водогрейные котлы HEATEXPERT .jpg
Товарный знак на водогрейные котлы HEATEXPERT

Отзывы о продукции

Отзыва о товаре пока нет, будьте первыми!

Мазутный водогрейный котел 4.0 ( - мощность 4.0 МВт; - топливо мазут; - температура 95 115 градусов; - отапливаемая площадь* от 33400 до 44000 м2; - отапливаемый объем* от 100200 до 132000 м3 (* диапазон для самого холодного и самого теплого региона РФ)); - применение для отопления производства, жилых зданий, цехов, складов, промышленных предприятий, теплиц, гаражей, больниц, школ, садов, для монтажа в модульных котельных.

Смотреть видеообзор на
Подберите необходимую мощность котла для вашего объекта
Тип здания
Регион
Населенный пункт
Вид топлива
Наружный объем здания (м3)
Отапливаемый подвал

Как подобрать мощность котла для вашего объекта

Подобрать мощность котла по площади важно учитывая не только площадь и объем здания, но и тип зданий и климатические данные региона.

На нашем сайте калькулятор расчета мощности котла учитывает тепло, требуемое на возмещение тепловых потерь через строительные конструкции и потери, вызываемые инфильтрацией (проникновением) наружного воздуха, через их неплотности и периодически открываемые двери.

Наружный строительный объем здания должен определяться умножением площади горизонтального сечения, взятого по внешнему обводу здания на уровне первого этажа на полную высоту здания, измеренную для панельных зданий: от уровня чистого пола (нулевой отметки) до верхней плоскости теплоизоляционного слоя чердачного покрытия, для остальных строений от уровня земли.

Расчетная температура воздуха в отапливаемых зданий принимается в зависимости от типа и назначения здания:

  • Гостиница, общежитие, административное здание, жилые дома + 20 °С;
  • Детские сады, ясли, поликлиники, амбулатории, диспансеры, больницы + 22 °С;
  • Высшие и средние специальные учебные заведения, общеобразовательные школы, школы интернаты, лаборатории, предприятия общественного питания, клубы, дома культуры + 16 °С;
  • Театры, магазины, пожарные депо + 15 °С;
  • Кинотеатры + 14 °С;
  • Гаражи + 10 °С;
  • Бани + 25 °С.

В случае если требуется отопление различных по типу зданий, теплопотребление каждого считается отдельно, полученные значения складываются и подобрать мощность котла нужно в соответствии с общей суммарной мощностью каждого отдельно стоящего задания.

Климатические условия вашего региона принимаются в соответствии с СП 131.13330 Строительная климатология. Данные по всем регионам России занесены в наш калькулятор расчета мощности котла.

Подобрать мощность котла по площади с учетом потребностей объекта в тепле на вентиляцию и горячую воду возможно только с более детальным расчетом. Его вы можете заказать в отделе сбыта котельного завода отправив заявку на электронный адрес sb@kvzr.ru или позвонив по телефонам (38-52) 29-97-41, 29-97-42.

Вопрос-ответ

  • Технические
    характеристики
  • Описание
    товара
  • Комплект
    поставки
  • Дополнительно
    потребуется
  • Сертификаты и
    гарантии
  • Отзывы о
    продукции
  • Видео
    обзор
  • Подбор
    котла
Документы завода
  • Сертификаты завода
  • Членство в СРО
  • Аттестованная технология сварки
  • Патенты на котельное оборудование
  • Товарные знаки
Смотреть все документы
Сертификат на водогрейные котлы на твердом и жидком топливе
Сертификат на водогрейные котлы на газе и жидком топливе
Сертификат на котлы отопительные паровые КП
Сертификат на топки
Сертификат на щиты управления
Сертификат на скиповые подъемники
Сертификат на золоуловители (циклоны)
Сертификат на конвейеры скребковые
Сертификат на дробилки
Сертификат на клапаны предохранительные
Сертификат на бункер-накопитель механизированный
Сертификат на автоматику газовых горелок
Сертификат о происхождении товара форма СТ-1
Членство в СРО
Членство в СРО
Аттестованная технология сварки
Свидетельство аттестованной технологии сварки
Патент на отопительный котел
Патент на водогрейный котел
Патент на топку водогрейного котла
Патент на водогрейный газовый котел
Патент на водогрейный котел
Патент на топочное устройство твердотопливного котла
Патент на водогрейный котел
HEATEXPERT товарный знак
KVZR товарный знак
STEAMEXPERT товарный знак
Другая похожая продукция
Дизельный котел отопления
Лизинг
Вид топкиДизельная горелка
Максимальная тепловая мощность, МВт4
ТопливоДизель, Жидкое
Отапливаемая площадь, м²33400-44000
1 564 000 р. Цена с НДС
Мазутный котел
Лизинг
Вид топкиМазутная горелка
Максимальная тепловая мощность, МВт4
ТопливоМазут, Жидкое
Отапливаемая площадь, м²33400-44000
1 564 000 р. Цена с НДС
Котел КВа HeatExpert
Лизинг
Вид топкиГазовая горелка
Максимальная тепловая мощность, МВт4
ТопливоГаз
Отапливаемая площадь, м²33400-44000
1 564 000 р. Цена с НДС
Мазутный котел КВГМ 3.5 МВт
Лизинг
Вид топкиМазутная горелка
Максимальная тепловая мощность, МВт3.5
ТопливоМазут, Жидкое
Отапливаемая площадь, м²29300-38400
1 520 000 р. Цена с НДС
Котел КВ ГМ под отечественную горелку
Лизинг
Вид топкиМазутная горелка
Максимальная тепловая мощность, МВт3
ТопливоМазут, Жидкое
Отапливаемая площадь, м²25000-32900
1 343 000 р. Цена с НДС
Газовый котел КВГ 4.0 МВт
Лизинг
Вид топкиГазовая горелка
Максимальная тепловая мощность, МВт4
ТопливоГаз
Отапливаемая площадь, м²33400-44000
1 610 000 р. Цена с НДС
Котел под горелку российского производства
Лизинг
Вид топкиДизельная горелка
Максимальная тепловая мощность, МВт4
ТопливоДизель, Жидкое
Отапливаемая площадь, м²33400-44000
1 610 000 р. Цена с НДС
Вы просматривали эти товары
Котел КВ ГМ под отечественную горелку
Лизинг
Вид топкиМазутная горелка
Максимальная тепловая мощность, МВт4
ТопливоМазут, Жидкое
Отапливаемая площадь, м²33400-44000
1 610 000 р. Цена с НДС
Мазутный паровой котел КП 300
Лизинг
Производительность, кг/ч300
ТопливоЖидкое, Мазут
Температура пара, не более, °C115
Давление пара, не более, МПа0.07
600 000 р. Цена с НДС
Котел КВ ГМ под отечественную горелку
Лизинг
Вид топкиМазутная горелка
Максимальная тепловая мощность, МВт1.2
ТопливоМазут, Жидкое
Отапливаемая площадь, м²9500-13600
865 000 р. Цена с НДС
Котел на щепе 3000 кВт
Лизинг
Вид топкиВихревая, Автоматическая
Максимальная тепловая мощность, МВт3
ТопливоЩепа
Отапливаемая площадь, м²25400-33000
4 345 000 р. Цена с НДС
background